Building Your Home, With Stepping Stones

Sometimes renovations need to happen quickly to meet a homeowner’s deadline and other desired renovations take a back seat until time allows. In this case this is exactly how it played out and in the end it was more beneficial to the client to take it one step at a time.

During the initial renovation we set our sights on helping get the project ready for a new family member, had time to understand more about our clients' aesthetics and the way they live before tackling the next renovation in their home.

 

Project Spotlight:  Our Goal is- Clients for Life

The Home Stats: 6,000 sq. foot home in Wayland that had good bones and needed updates all around to convert the space to meet the new Owners' vision. The list of renovations on the radar from “immediate need” to “later on” started with a kitchen renovation and tweaks to the adjacent family room which led to additional updates in the home including an highliy functional and still welcoming mudroom with adjacent laundry room and more recently, the master suite.

 

The Clients’ Immediate Needs

Our first meeting was to look at the kitchen. The Owners had just closed on the house and were expecting their third child. As busy, working professionals with demanding schedules they needed to have their kitchen renovated before the baby arrived (and fully designed before maternity leave ended).

 

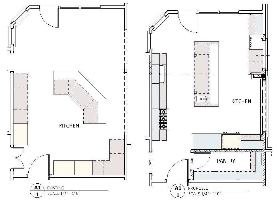
The Challenges & Approach

Kitchen- 2015: The client saw the kitchen renovation as an opportunity to change the layout to fit their needs which had to include a panty that did not exist. The existing space designated dinette was shifted to the family room where there was ample space to put a larger casual dining table, and the dated u-shape island could become a more usable prep and counter seating space. One of our favorite parts of the design was re-purposing some existing family room built-ins' shelving to create an eye-catching pantry with rich wood shelving.

 

Mudroom- 2018: There was the mudroom that could be made so much more useful. The existing plan seemed like it was comprised of arbitrary hall and closet space and the powder room was placed with the room that was leftover. The only way to remedy this was to start off with a clean slate. The Owners ended up with a place for all that mudroom stuff- and a powder room that works well for coming in from a snow day; and by stacking the laundry a few more coats could be stored out of sight.

 

Master Bath- 2020: Like a lot of existing homes built in this era, the existing bath had an overbearing tub and pedestal with an undersized shower. The wants included larger walk-in shower, a double vanity with great storage and a walk-in closet that would have more usable space. By moving the entrance from the master bedroom and installing linen cabinetry where the vanity was located, we improved the walk-in closet by about 30% more use with only 5% more space. The Vanity becomes a useful and easily accessible place right off the bathroom; while the soaking tub feels luxurious, but scaled appropriately to the room.

0

Leave a comment

Copyright © 2026 · Powered by LOCALiQ